Volume I - Final EIR
Title Page, Table of Content (PDF, 130KB)
Chapter 1 - Introduction and Executive Summary (PDF, 234KB)
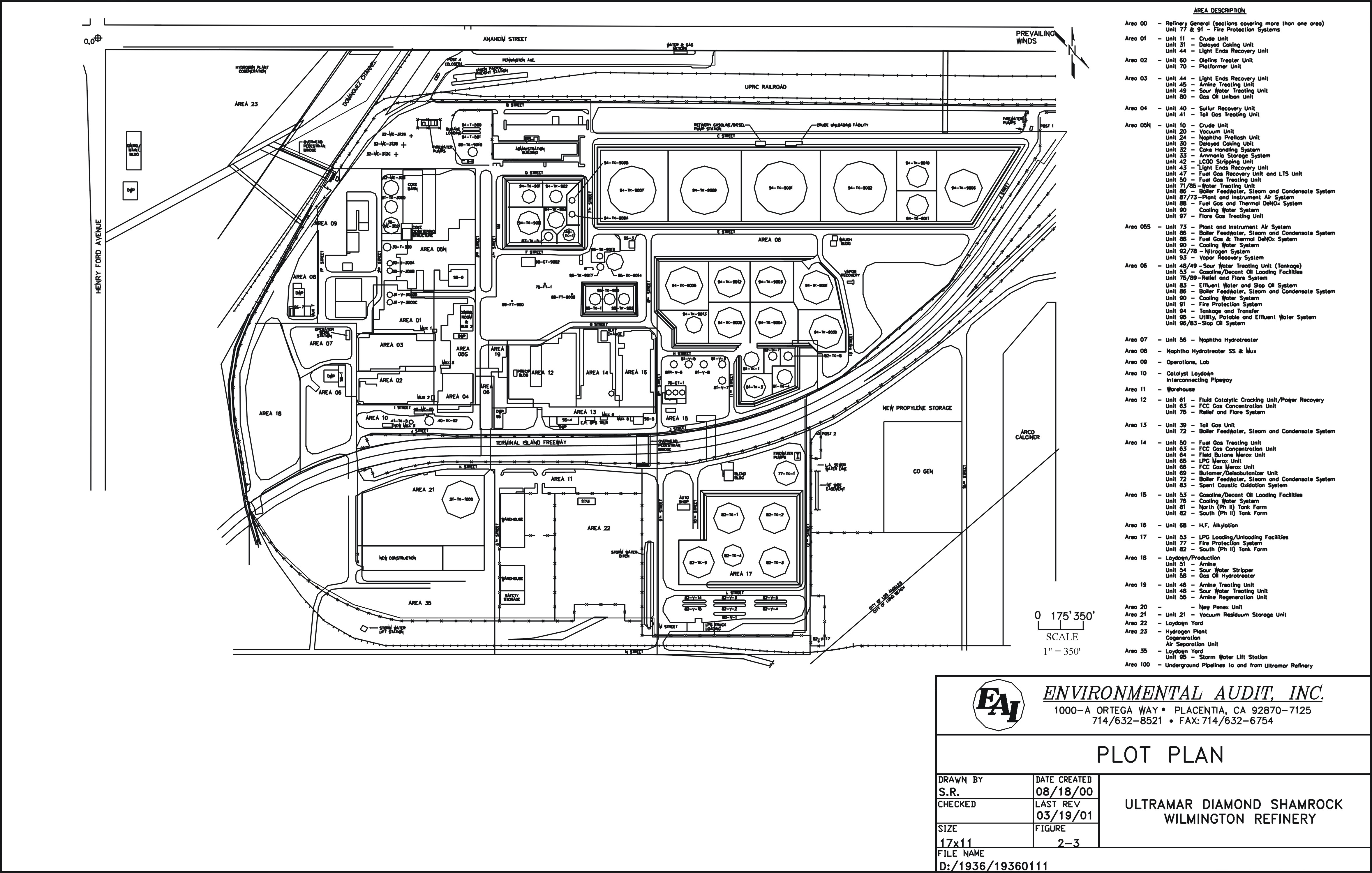
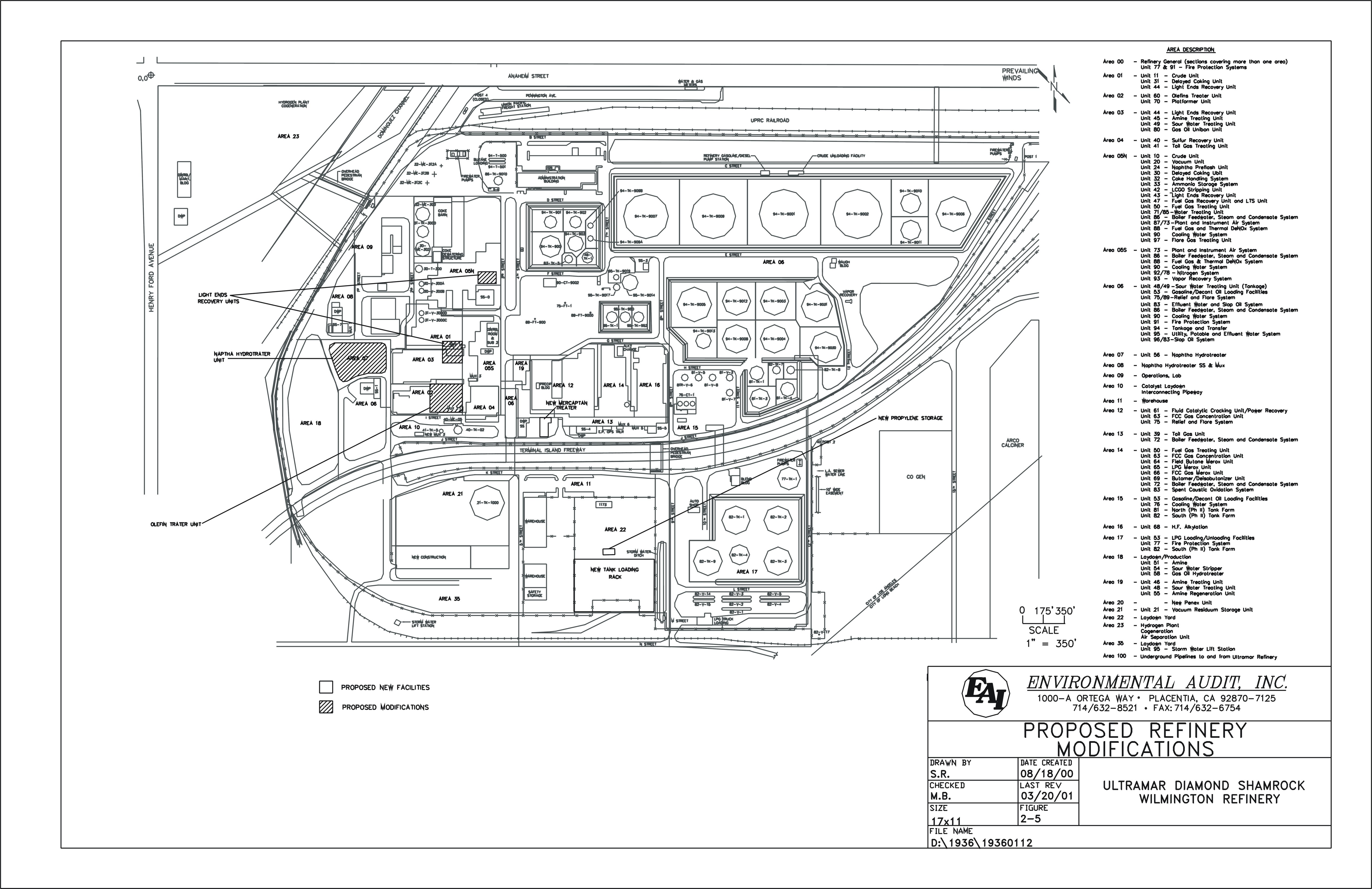
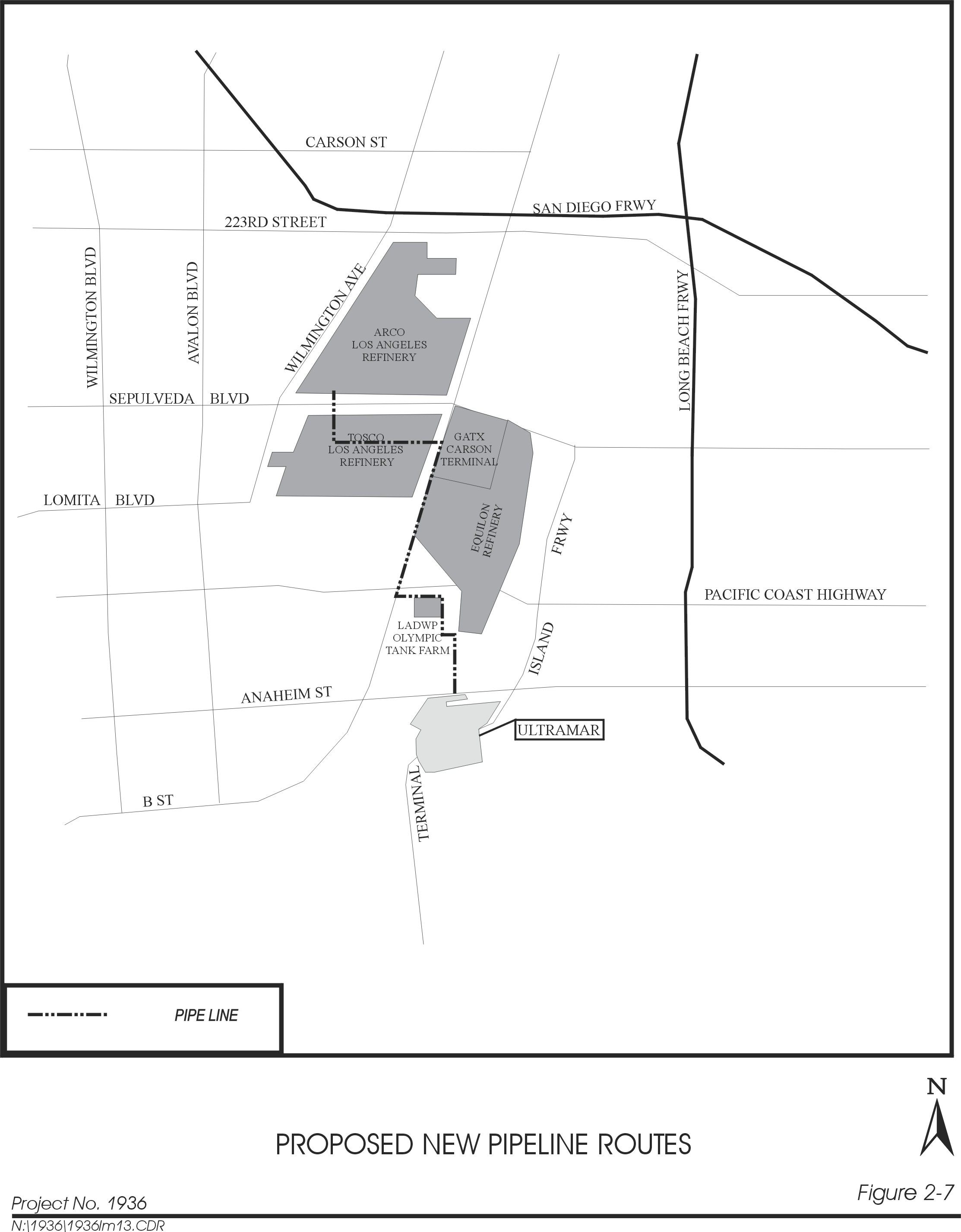
Chapter 2 - Project Description (PDF, 180KB) Figure 2-1: Regional Map (JPG, 489KB) Figure 2-2: Project Location (JPG, 2.4MB) Figure 2-3: Plot Plan (JPG, 2.0MB) Figure 2-4: Pre-Modification Flow Diagram (JPG, 410KB) Figure 2-5: Proposed Refinery Modifications (JPG, 2.1MB) Figure 2-6: Post-Modification Flow Diagram (JPG, 425KB) Figure 2-7: Proposed New Pipeline Routes (JPG, 384KB) Figure 2-8: Construction Related Labor Forecast (JPG, 346KB)
Chapter 3 - Existing Environmental Setting (PDF, 997KB) Figure 3-1: Cancer Risk Isopleth (JPG, 1.6MB) Figure 3-2: Maximum Impact Locations (JPG, 1.7MB) Figure 3-3: Major Fault Systems in Southern California (JPG, 767KB) Figure 3-4: Photograph Locations (JPG, 404KB) Figure 3-5: General Noise Sources (XLS, 19KB) Figure 3-6: Noise Measurement Locations (JPG, 399KB) Figure 3-7: Land Use Compatibility for Community Noise (XLS, 20KB) Figure 3-8: Local Transportation System (JPG, 413KB)
Chapter 4 - Environmental Impacts and Mitigation Measures (PDF, 519KB) Figure 4-1: Project Maximum Impact Locations (JPG, 1.4MB) Figure 4-2: Unattenuated Noise Levels from Pipeline Construction (JPG, 307KB)
Chapter 5 - Cumulative Impacts (PDF, KB)422 Figure 5-1: Southern California Refineries (JPG, 395KB) Figure 5-2: Related Projects (JPG, 443KB) Figure 5-3: Cancer Risk Isopleth - Cumulative Scenerio (JPG, 1.2MB)
Chapter 6 - Project Alternatives (PDF, 152KB)
Chapter 7 - References (PDF, 89KB)
Chapter 8 - Acronyms and Glossary (PDF, 80KB)
Appendix A: Notice of Preparation (NOP) and Initial Study AND Comments Received on NOP and Responses to the Comments (PDF, 1.6MB)
Appendix B: Emission Calculations (XLS, 279KB)
Appendix C: Traffic Level of Service Analyses (PDF, 389KB)
Volume II - Health Risk Assessment and Volume III - Hazards Analysis are not available online due to its large size. To request a hardcopy it is necessary to submit a Public Records Act request. For information on submitting a request, go to the following link: http://www.aqmd.gov/contact/public-records
Volume IV Responses to Comments on the Draft EIR
Table of contents (PDF, 60KB)
Letters 1-4 (PDF, 534KB)
Letter 5 - part 1 (PDF, 901KB), part 2 (PDF, 936KB), part 3 (PDF, 760KB), part 4 (PDF, 754KB), part 5 (PDF, 688KB), part 6 (PDF, 741KB), part 7 (PDF, 765KB), part 8 (PDF, 294KB)
Letter 6 (PDF, 543KB)
Attachment 1 Statement of Findings, Overriding Considerations and Mitigation Monitoring Plan
South Coast Air Quality Management District
21865 Copley Dr, Diamond Bar, CA 91765
909-396-2000
© 2026 South Coast Air Quality Management District